!Verkauft! Provisionsfreies Kaufangebot: Kernsaniertes Mehrgenerationshaus in Mülheim-Saarn zur Eigennutzung / einseitig abgebaut
Bezugsfrei entweder bei Kaufpreiszahlung oder nach Absprache
Bezugsfrei ab:
nach Absprache
Vermietet:
Ja
Monatliche Mieteinahmen:
Provision:
Provisionsfrei für den Käufer
Denkmalschutzobjekt
Balkon/Terasse
Garten/Mitbenutzung
Einbauküche
Personenaufzug
Stufenloser Zugang
Gäste WC
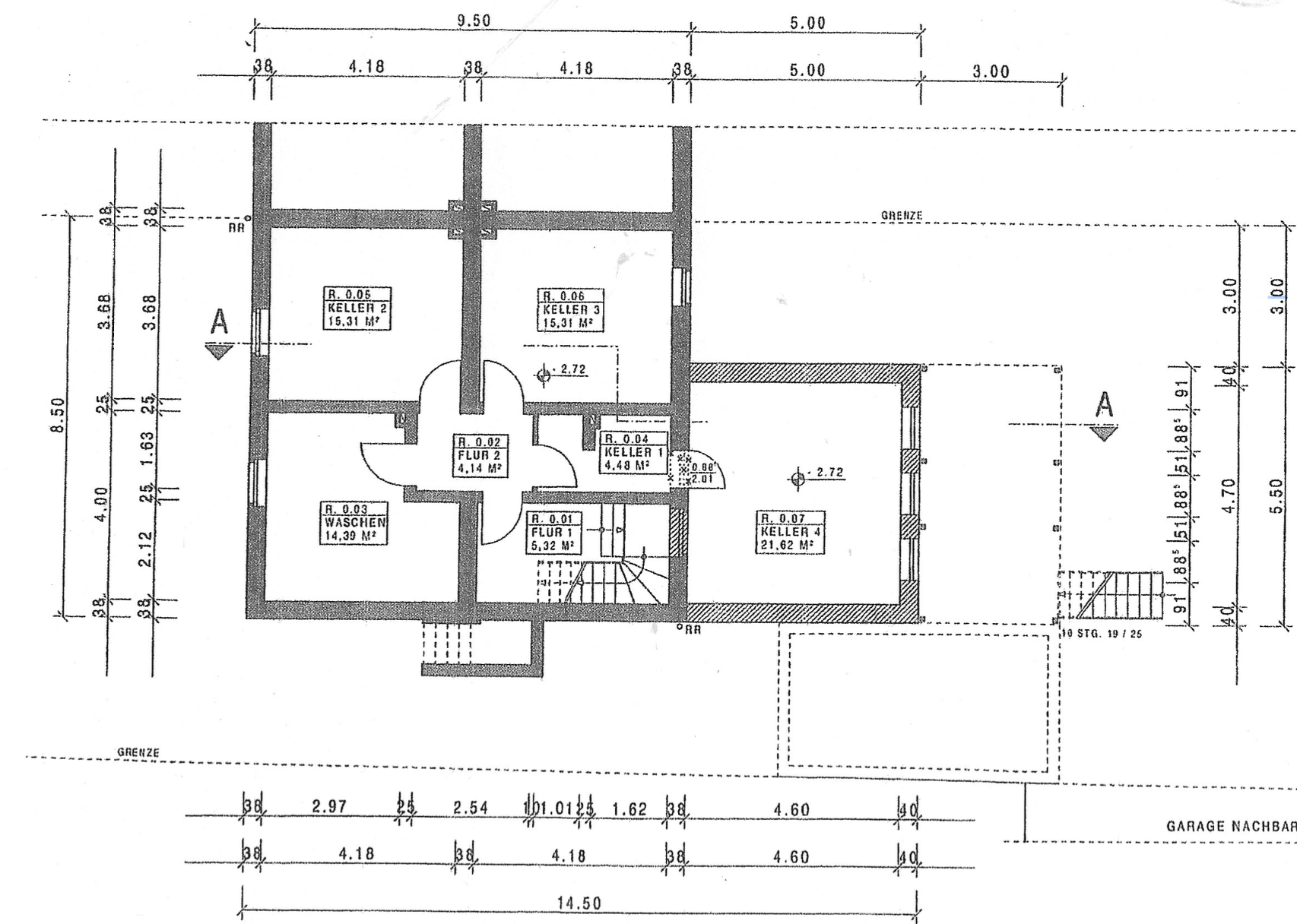
Keller
Ferienwohnung geeignet
Dieses energetisch top und sehr hochwertig ausgestattete 1 bis 3 Familienhaus wurde in 2 Zeitabschnitten (2009-2010 und 2016) vollständig umgebaut und dabei energetisch optimiert.
1938 wurde das Wohngebäude im Ursprung errichtet. Da in den früheren 30er Jahren noch gesunde Baumaterialien verwendet wurden, macht es Sinn diese Häuser zu erhalten bzw. durch Kernsanierung den heutigen Wohnansprüchen anzupassen.
Der erste Sanierungsanteil fand in 2009 bis 2010 statt, der 2. Sanierungsabschnitt erfolgte mit einer zusätzlichen Wohraumerweiterung durch einen Neu(an)bau erst 6 Jahre später, in 2016.
Lassen Sie sich von der gründlichen, liebevoll harmonischen dazu hochwertigen Ausstattung überzeugen.
Aufgrund der perfekten Fassaden- Kellerdecken- und Innendachdämmung heizt sich das Gebäude im Sommer kaum auf. Dafür bleibt die Wärme im Winter lang erhalten. Ein Grund dafür, dass sehr niedrige Heizkosten anfallen.
Zusätzlich befinden sich auf dem Grundstück vor dem Wohngebäude 3 Parkmöglichkeiten.
Die Aussentreppe zum Hauseingang ist mit hochwertigen, witterungsbeständigen, rutschfesten, großformatigen Bodenplatten belegt.
Der Parkplatz vor dem Wohngebäude und der Eingangsbereich verfügen über feststehende, stylische Beleuchtungskörper und über Bewegungsmelder.
Wichtige Informationen:
Geldwäsche/ GWG:
Die Fa. Weber Immobilien e.Kfr. ist dazu verpflichtet, die Indentitätsprüfung (nach § 2 GWG) im Kundenkontakt durchzuführen. Dazu gehören die Erhebung von Daten bei natürlichen Personen, Name, Geburtsort und Datum, Staatsangehörigkeit und Anschrift. Bei juristischen Personen sind Firma, Rechtsform, Registernummer, Sitz und Namen der Vertretungsberechtigten notwendig. Die erhobenen Daten und Ausweiskopien müssen fünf Jahre aufbewahrt werden.
Haftung:
Alle Angaben in diesem Exposé beruhen auf den von unserem Auftraggeber mitgeteilten Informationen. Wir behalten uns Irrtümer trotz sorgfältiger Prüfung vor. Eine Haftung für die Vollständigkeit oder Richtigkeit der hier gemachten Informationen übernehmen wir nicht. Die Überprüfung der hier enthaltenen Informationen zur Immobilie obliegt von daher unseren Kunden.
Zwischenverkauf oder Zwischenvermietung bleibt uns vorbehalten.
weiterlesen...
Folgende Maßnahmen wurden durchgeführt:
- Grundrissänderungen mittels Durchbrüchen und Erweiterung in 2016 eines Anbaus auf den modernsten und aktuellen Wohnbedarf,
- Fassaden- und Innendachdämmung nebst Anstrich in 2010 und 2016 jeweils mit 14 cm starker Außendämmung,
- Einbringung moderner Isolierverglasung in 2010, 2-fach-Verglasung im 1. OG, im 2. OG und der Galerie. 2016 wurden das EG und das Gartengeschoss mit 3-fach Verglasung und elektrischen Außenrollos ausgestattet,
- Erneuerung der gesamten Elektroinstallationen auf den modernen, aktuellen Anspruch, sowie Einbau einer separat geschalteten Aussenbeleuchtung,
- Erneuerung der gesamten Wasserabfluss und Zulaufleitungen,
- Neuverputzung der Wände und Decken, Glattputz und weißer Anstrich derselben, Anstrich derselben,
- neue weiße isolierverglaste Fensterelemente,
- 2010, Kernsanierung der Bäder mit Einbringung zeitgemäßer Fliesen, weißer, edler Sanitärobjekte mit hochwertigen Armaturen und Accessoires,
- 2016, Komplettumbau der EG-Einheit mit Erweiterung zum Untergeschoß, Grundrißänderung und Vergrößerung,
- 2016, Badeinbau mit luxuriösen, großformatigen Bodenplatten und Wandplatten. Einbau luxuriöser Sanitärobjekte, Armaturen mit dazu passenden Accessoires,
- 2010, 1. OG, 2. OG , Spitzboden, Entfernung sämtlicher alter Bodenbeläge mit Estricherneuerung und Einbringung moderner, zeitgemäßer Oberböden,
- 2010, Umbau des Spitzbodens, Dämmung desselben, Einbau von 3 großformatigen Dachflächenfenstern, Einbau eines Edelstahlabluftrohres zur Vorbereitung eines Kamineinbaus,
- 2010, Verbindung des Spitzbodens mit dem 2. OG über eine interne, gut begehbare Holztreppe mit Handlauf,
- 2016, im Erdgeschoss und Gartenschoss, Entfernung der alten Bodenbeläge, Estricherneuerung, Verlegung von hochwertigem Landholzdielen aus Eiche im EG sowie im zur Gartenseite gelegenem Schlafraum,
- Einbaustrahler im EG und zum Teil in den anderen Etagen,
- Einbringung einer hochwertigen Verbindungstreppe vom EG zum Gartengeschoss,
- Abgrabung und Abdichtung des zur Rückseite gelegenen Schlafraums sowie Erweiterung eines, vom Schlafraum aus begehbaren, überdachten Freisitzes (mit 50 % zur Wfl. angesetzt) und einer darüber liegenden, von der Küche aus begehbaren Terrasse (mit 25 % zur Wfl. angesetzt),
- Einbringung einer großzügigen Gartenterrasse mit 28,5 ² Fläche am linken Grundstücksende (nicht in der WFL oder NUF angesetzt),
- Einbringung neuer, hochwertiger Kunststofftüren mit passenden Griffarmaturen,
- Estricherneuerung im Kellerbereich, zum Teil mit anthrazitfarbenem Anstrich, zum Teil gefliest,
- 1 gefliester Waschkeller mit Waschmaschinenanschluß und Funktion über Münzapparat für Mieter,
- 1 Waschkeller mit Waschmaschinenanschluß und Elektroanschluss für Eigennutzer,
- ein weiterer gefliester Kellerraum als Vorratskeller,
- in allen 3 Kellerräumen sind Kellerfenster vorhanden,
- Einbau einer Brandschutztür im Keller,
- hochwertige Eingangstüren im EG, 1 und 2. OG,
- 2009 wurden zwei Gasetagenheizungen im Kellergeschoß für die Wärmeversorgungen des ganzen Gebäudes eingebaut. Diese beiden Gasetagenheizungen werden jährlich nachgewiesen gewartet,
- wertvolle Vertikalheizkörper im Erdgeschoß und im Gartengeschoß,
- Heizkörperanschluß im Treppenhaus, falls das gesamte 1 bis 3-Parteienhaus als Einfamilienhaus genutzt werden sollte,
- 2016, Klingelanlage im EG mit Videoüberwachung und Gegensprecheinrichtung,
- 2010, 1. OG und 2. OG, Einbau einer Klingelanlage mit Gegensprecheinrichtung,
- zusätzlich ist eine Flächenerweiterung zur Rückseite möglich,
- Es befindet sich eine Sat-Schüssel mit 2 gelegten Verbindungsanschlüssen im WZ des EG und im Schlafraum vom UG, 1 gelegtem Anschluss im WZ des 1. OG, 2 gelegten Anschlüssen im 2. OG des WZ sowie 1 Anschluss auf der geräumigen Schlafgalerie. Die Nutzfläche der Galerie beträgt ca. 11,70 m² (ca. 18 m² Bodenfläche).
weiterlesen...
Dieses wunderschöne und sehr gepflegte 1 bis 3 Familienwohngebäude befindet sich in einem begehrten, ruhigen Wohngebiet und zukünftigen 30er Zone von Mülheim-Saarn. Der Ruhrschnellweg, die A40, führen durch Mülheims Norden. Die A3, die A52 haben keine Direktanbindung und führen über das Mülheimer Gebiet. Die Ruhrtalbrücke der A52, mit 2 km Länge, ist die längste Straßenbrücke Deutschlands. Essen und Düsseldorfsind z.B. dadurch verbunden.
Nur 20 km von hier entfernt liegt der internationale Düsseldorfer Flughafen mit Linienflugverkehr. Mülheim selbst verfügt über einen Flugplatz der in der Hauptsache für Schulungszwecke aber auch für Privatflugzeuge benötigt wird.
Der HBF (ca. 5 km von hier entfernt) verfügt derzeit täglich über 11 ICE / IC / EC Verbindungen. Mit Bus und Bahn z.B. der Bahnverbindung, Linie 102 von Mülheim Waldschlößchen (450 m Fußweg), ist man innerhalb von 10 Minuten Fahrzeit am HBF in Mülheim. Seit kurzem gibt es, 50 m von hier gelegen, eine Busverbindung. Im Zentrum vom Dorf Saarn findet einmal wöchentlich ein Wochenmarkt mit allen Leckereien statt. Unabhängig davon sind alle Geschäfte des täglichen Bedarfs sowie luxuriöse Boutiquen im Saarner Dorf. Aufgrund der großen Waldgebiete, hat man hier eine ausgezeichnete Luftqualität. Sportive können diese Möglichkeit nutzen um dort auszupowern, wie z.B. beim Reiten, Fußball, Tennis und Hockey. Ausserdem gibt es in Mülheim 2 Golfclubs.
weiterlesen...
Wichtige Hinweise:
Haftung:
Alle Angaben in diesem Exposé beruhen auf den von unserem/ unseren Auftraggeber(n) mitgeteilten Informationen, mit dazu gehören auch Pläne sowie uns übergebene schriftliche Unterlagen. Wir behalten uns Irrtümer trotz sorgfältiger Prüfung vor. Eine Haftung für die Vollständigkeit oder Richtigkeit der hier gemachten Informationen übernehmen wir nicht. Die Überprüfung der hier gemachten Angaben zur Immobilie obliegt von daher unseren Kunden. Irrtum, Zwischenvermarktung ob zum Verkauf oder zur Vermietung bleiben vorbehalten.
GWG (Geldwäschegesetz):
Nach dem GWG (Geldwäschegesetz) besteht für uns als gewerblichen Anbieter, die Verpflichtung der Identitätsfeststellung und Überprüfung unserer Vertragspartner (§ 2, Abs. 1 Nr. 14 und §10 Abs. 3 – GwG).
Vor Kaufvertragsabschluss sind wir daher verpflichtet, die relevanten Daten aufzunehmen und zu dokumentieren.
Wir bitten daher Käufer und Verkäufer uns die erforderlichen Unterlagen (entweder gültigen Personalausweis oder Reisepass) vorzulegen, damit wir eine Kopie davon fertigen können. Bei Unternehmen sind zusätzlich Auszüge aus dem Handelsregister sowie Angaben/Unterlagen zu wirtschaftlich Berechtigten (z. B. Gesellschafterliste) vorzulegen. Gemäß § 11 GWG sind von uns die Kopien 5 Jahre lang aufzubewahren.
Vielen Dank für Ihr Verständnis und Ihrer Kooperation.











